大阪府大阪市西区新町4丁目
/1DK /28.25m2 /4階部分 /南向き /
| 賃料(共益費) |
111,500円 (10,000円) |
|---|
| 間取り(面積) |
1DK
( 28.25 m2) |
|---|
大阪府大阪市西区新町4丁目
千日前線「西長堀」徒歩5分
中央線「阿波座」徒歩8分
長堀鶴見線「ドーム前千代崎」徒歩11分
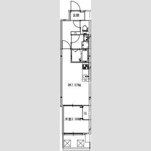
Room Plan
| 間取タイプ | 1DK | ||
|---|---|---|---|
| 間取詳細 | DK:7.07畳 洋:3.38畳 | ||
| 専有面積 | 28.25m2 | ||
| 方 位 | 南向き | ||
| 所在階 | 4階部分 | ||
| 賃 料 | 111,500円 | ||
| 管理費 | 10,000円 | ||
| 敷 金 | なし | ||
| 礼 金 | なし | ||
| 状 態 |
空室
入居時期:即入 |
||
| 物件種別 | [住居用] マンション |
|---|---|
| 所在地 | 大阪府大阪市西区新町4丁目 |
| 交通 |
千日前線「西長堀」徒歩5分 中央線「阿波座」徒歩8分 長堀鶴見線「ドーム前千代崎」徒歩11分 |
| 構造 | 鉄筋コンクリート造 地上9階 |
| 築年 | 2026年01月築 |
| 駐車場 |
○ ペット相談(小型犬、猫可) ○ 保証人不要 ○ 保証会社利用必須
○ 給湯器 ○ ガスコンロ(2口) ○ システムキッチン
○ 風呂 ○ トイレ(水洗) ○ 浴室乾燥機 ○ シャワートイレ ○ 洗髪洗面化粧台 ○ バス・トイレ別 ○ 洗濯機置場(室内)
○ エアコン
○ シューズボックス
○ インターネット対応 ○ ネット使用料不要
○ オートロック ○ 宅配BOX ○ 管理人(巡回) ○ 防犯カメラ ○ インターホン(カメラ付き)
○ 専用ごみ置場 ○ エレベーター(1基) ○ ガス(都市ガス) ○ 水道(公営) ○ 排水(公共下水) ○ バルコニー/ベランダ ○ 24時間換気システム
| 物件種別 | [住居用] マンション |
|---|---|
| 物件名 | Alivis新町 |
| 号室名 | 403 |
| 所在地 | 大阪府大阪市西区新町4丁目14-11 |
| 交通 |
千日前線「西長堀」徒歩5分 中央線「阿波座」徒歩8分 長堀鶴見線「ドーム前千代崎」徒歩11分 |
| 構造 | 鉄筋コンクリート造地上9階 |
| 築年月 | 2026年01月 |
| 駐車場 | |
| 町会費 | |
| 所在階 | 4階部分 |
| 方位 | 南向き   |
| 間取り |
1DK DK:7.07畳 洋:3.38畳 |
| 専有面積 | 28.25 m2 |
| 状態 | 空室 |
| 賃料 | 111,500円 |
| 共益費 | 10,000円 |
| 敷金 | なし |
| 礼金 | なし |
| 他諸経費 |
保険:保険要加入 2年契約 18,000円 ~ (AIG損害保険) ※ 特記されているものだけを表示していますので、詳しくはお問い合わせの際にご確認ください。 |
| その他 |
普通借家2年間 普通借家 |
| オススメ | |
| 設備・条件 | ○ ペット相談(小型犬、猫可) ○ 保証人不要 ○ 保証会社利用必須 ○ 給湯器 ○ ガスコンロ(2口) ○ システムキッチン ○ 風呂 ○ トイレ(水洗) ○ 浴室乾燥機 ○ シャワートイレ ○ 洗髪洗面化粧台 ○ バス・トイレ別 ○ 洗濯機置場(室内) ○ エアコン ○ シューズボックス ○ インターネット対応 ○ ネット使用料不要 ○ オートロック ○ 宅配BOX ○ 管理人(巡回) ○ 防犯カメラ ○ インターホン(カメラ付き) ○ 専用ごみ置場 ○ エレベーター(1基) ○ ガス(都市ガス) ○ 水道(公営) ○ 排水(公共下水) ○ バルコニー/ベランダ ○ 24時間換気システム |
| 情報更新日 | 2026-03-19 03:50:08 |

お問い合わせの際に「Alivis新町 403」もしくは「お部屋ID:9213054」とお伝えいただくとスムーズです。

| 間取り | / 1DK DK:7.07畳 洋:3.38畳 | ||
|---|---|---|---|
| 完成年月 | / 2026年01月 | ||
| 構造 | / 鉄筋コンクリート造地上9階 | ||
| 入居可能日 | / 空室 | ||
| 総戸数 | / | ||
| 契約形態 | / | ||
| 駐車場 | / | ||
| 売却(敷引) | / | ||
| 割引サービス | / | ||
| 設備 | / ○ ペット相談(小型犬、猫可) ○ 保証人不要 ○ 保証会社利用必須 ○ 給湯器 ○ ガスコンロ(2口) ○ システムキッチン ○ 風呂 ○ トイレ(水洗) ○ 浴室乾燥機 ○ シャワートイレ ○ 洗髪洗面化粧台 ○ バス・トイレ別 ○ 洗濯機置場(室内) ○ エアコン ○ シューズボックス ○ インターネット対応 ○ ネット使用料不要 ○ オートロック ○ 宅配BOX ○ 管理人(巡回) ○ 防犯カメラ ○ インターホン(カメラ付き) ○ 専用ごみ置場 ○ エレベーター(1基) ○ ガス(都市ガス) ○ 水道(公営) ○ 排水(公共下水) ○ バルコニー/ベランダ ○ 24時間換気システム | ||
| 備考 | / ○ 普通借家 ○ 2年間 | ||
Alivis新町 403
物件所在地:大阪府大阪市西区新町4丁目
千日前線「西長堀」徒歩5分
中央線「阿波座」徒歩8分
長堀鶴見線「ドーム前千代崎」徒歩11分
賃料: 111,500円
| ■管理費 | 10,000円 |
|---|---|
| ■敷金 | なし |
| ■礼金 | なし |
|
<その他費用>
保険:保険要加入 2年契約 18,000円 ~ (AIG損害保険) |
|