大阪府大阪市浪速区久保吉1丁目
/2LDK /55.67m2 /1階部分 /東向き /
| 賃料(共益費) |
168,000円 (10,500円) |
|---|
| 間取り(面積) |
2LDK
( 55.67 m2) |
|---|
大阪府大阪市浪速区久保吉1丁目
汐見橋線「芦原町」徒歩7分
千日前線「桜川」徒歩11分
環状線「芦原橋」徒歩10分
■解約予告:1ヶ月前(月割り計算)
■楽器不可
■事務所利用不可
■ペット飼育可能(小型犬・猫どちらか1匹まで)
・共益費3,000円増額、飼育時クリーニング費27,500円(税込)
・成獣の状態で体長50cm以下(鼻先より尾のつけ根まで)
(事前に種類の確認、契約時に写真や予防接種を受けた証明書等の提出が必須。)
■設備
【エアコン】全戸3基
【システムキッチン】全戸3口ガスコンログリル付き
【浴室】全戸高温差し湯式バス 全戸UB1416
【ウォークインクローゼット】全戸設置
【シューズインクローゼット】全戸設置
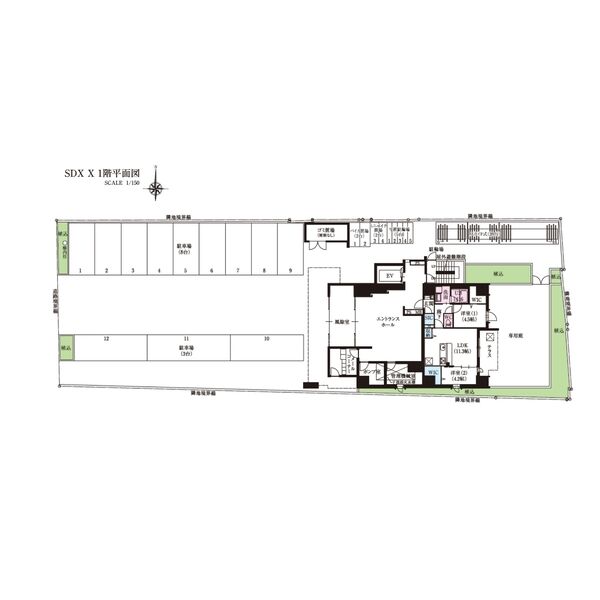
Room Plan
| 間取タイプ | 2LDK | ||
|---|---|---|---|
| 間取詳細 | |||
| 専有面積 | 55.67m2 | ||
| 方 位 | 東向き | ||
| 所在階 | 1階部分 | ||
| 賃 料 | 168,000円 | ||
| 管理費 | 10,500円 | ||
| 敷 金 | なし | ||
| 礼 金 | 2ヶ月 | ||
| 状 態 |
建築中
入居時期:2026年6月30日 |
||
| 物件種別 | [住居用] マンション |
|---|---|
| 所在地 | 大阪府大阪市浪速区久保吉1丁目 |
| 交通 |
汐見橋線「芦原町」徒歩7分 千日前線「桜川」徒歩11分 環状線「芦原橋」徒歩10分 |
| 構造 | 鉄筋コンクリート造 地上15階 |
| 築年 | 2026年06月築 |
| 駐車場 |
○ 角部屋
○ ペット相談(小型犬、猫可) ○ 2人入居可能 ○ 子供可 ○ 保証会社利用必須
○ 給湯器(ガス) ○ ガスコンロ(3口以上) ○ システムキッチン ○ カウンターキッチン
○ 風呂(ユニットバス) ○ トイレ(水洗) ○ 洗面台(独立) ○ 浴室乾燥機 ○ シャワートイレ ○ 洗髪洗面化粧台 ○ バス・トイレ別 ○ 洗濯機置場(室内)
○ エアコン(冷暖房)
○ ウォークインクローゼット ○ シューズボックス
○ インターネット対応 ○ ネット使用料不要 ○ Wi-Fi
○ オートロック ○ 宅配BOX ○ 防犯カメラ ○ インターホン(カメラ付き)
○ 専用ごみ置場 ○ エレベーター(1基) ○ オートバイ駐輪場 ○ 自転車置場 ○ 電気 ○ ガス(都市ガス) ○ 水道(公営) ○ 排水(公共下水) ○ バルコニー/ベランダ ○ 専用庭付 ○ フローリング
| 物件種別 | [住居用] マンション |
|---|---|
| 物件名 | スプランディッドX(テン) |
| 号室名 | 101 |
| 所在地 | 大阪府大阪市浪速区久保吉1丁目1257-2(地番) |
| 交通 |
汐見橋線「芦原町」徒歩7分 千日前線「桜川」徒歩11分 環状線「芦原橋」徒歩10分 |
| 構造 | 鉄筋コンクリート造地上15階 |
| 築年月 | 2026年06月 |
| 駐車場 | |
| 町会費 | |
| 所在階 | 1階部分 |
| 方位 | 東向き   |
| 間取り | 2LDK |
| 専有面積 | 55.67 m2 |
| 状態 | 建築中 |
| 賃料 | 168,000円 |
| 共益費 | 10,500円 |
| 敷金 | なし |
| 礼金 | 2ヶ月 |
| 他諸経費 |
保険: 火災保険 2年契約 20,000円 カギ交換費用:11,000円(契約時) ※ 特記されているものだけを表示していますので、詳しくはお問い合わせの際にご確認ください。 |
| その他 |
法人契約可 普通借家2年間 普通借家 |
| オススメ |
○ ■解約予告:1ヶ月前(月割り計算) ■楽器不可 ■事務所利用不可 ■ペット飼育可能(小型犬・猫どちらか1匹まで) ・共益費3,000円増額、飼育時クリーニング費27,500円(税込) ・成獣の状態で体長50cm以下(鼻先より尾のつけ根まで) (事前に種類の確認、契約時に写真や予防接種を受けた証明書等の提出が必須。) ■設備 【エアコン】全戸3基 【システムキッチン】全戸3口ガスコンログリル付き 【浴室】全戸高温差し湯式バス 全戸UB1416 【ウォークインクローゼット】全戸設置 【シューズインクローゼット】全戸設置 |
| 設備・条件 | ○ 角部屋 ○ ペット相談(小型犬、猫可) ○ 2人入居可能 ○ 子供可 ○ 保証会社利用必須 ○ 給湯器(ガス) ○ ガスコンロ(3口以上) ○ システムキッチン ○ カウンターキッチン ○ 風呂(ユニットバス) ○ トイレ(水洗) ○ 洗面台(独立) ○ 浴室乾燥機 ○ シャワートイレ ○ 洗髪洗面化粧台 ○ バス・トイレ別 ○ 洗濯機置場(室内) ○ エアコン(冷暖房) ○ ウォークインクローゼット ○ シューズボックス ○ インターネット対応 ○ ネット使用料不要 ○ Wi-Fi ○ オートロック ○ 宅配BOX ○ 防犯カメラ ○ インターホン(カメラ付き) ○ 専用ごみ置場 ○ エレベーター(1基) ○ オートバイ駐輪場 ○ 自転車置場 ○ 電気 ○ ガス(都市ガス) ○ 水道(公営) ○ 排水(公共下水) ○ バルコニー/ベランダ ○ 専用庭付 ○ フローリング |
| 情報更新日 | 2026-03-24 14:50:33 |

お問い合わせの際に「スプランディッドX(テン) 101」もしくは「お部屋ID:9066385」とお伝えいただくとスムーズです。

| 間取り | / 2LDK | ||
|---|---|---|---|
| 完成年月 | / 2026年06月 | ||
| 構造 | / 鉄筋コンクリート造地上15階 | ||
| 入居可能日 | / 建築中 | ||
| 総戸数 | / | ||
| 契約形態 | / | ||
| 駐車場 | / | ||
| 売却(敷引) | / | ||
| 割引サービス | / | ||
| 設備 | / ○ 角部屋 ○ ペット相談(小型犬、猫可) ○ 2人入居可能 ○ 子供可 ○ 保証会社利用必須 ○ 給湯器(ガス) ○ ガスコンロ(3口以上) ○ システムキッチン ○ カウンターキッチン ○ 風呂(ユニットバス) ○ トイレ(水洗) ○ 洗面台(独立) ○ 浴室乾燥機 ○ シャワートイレ ○ 洗髪洗面化粧台 ○ バス・トイレ別 ○ 洗濯機置場(室内) ○ エアコン(冷暖房) ○ ウォークインクローゼット ○ シューズボックス ○ インターネット対応 ○ ネット使用料不要 ○ Wi-Fi ○ オートロック ○ 宅配BOX ○ 防犯カメラ ○ インターホン(カメラ付き) ○ 専用ごみ置場 ○ エレベーター(1基) ○ オートバイ駐輪場 ○ 自転車置場 ...その他 | ||
| 備考 | / ○ 法人契約可 ○ 普通借家 ○ 2年間 | ||
スプランディッドX(テン) 101
物件所在地:大阪府大阪市浪速区久保吉1丁目
汐見橋線「芦原町」徒歩7分
千日前線「桜川」徒歩11分
環状線「芦原橋」徒歩10分
賃料: 168,000円
| ■管理費 | 10,500円 |
|---|---|
| ■敷金 | なし |
| ■礼金 | 2ヶ月 |
|
<その他費用>
保険: 火災保険 2年契約 20,000円 カギ交換費用:11,000円(契約時) |
|